Modern construction meets urban charm in Oakley.
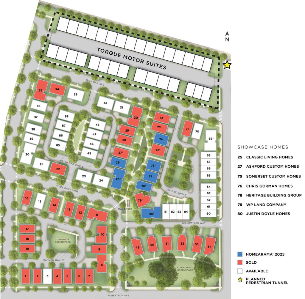
Foundry Park at Three Oaks is tucked away just a few blocks from Oakley Square in one of the most iconic and highly sought-after neighborhoods in Cincinnati, OH.
Inspired by Oakley’s vibrant community culture.
Homesites at Foundry Park are surrounded by green spaces, pocket parks, cozy gathering spots with fire pits, and the incredible local residents and businesses that make Oakley such a desirable place to call home.
LEED® 15-Year Tax Abatement
Take advantage of Foundry Park’s coveted 15-year tax abatement from Cincinnati. All builds are pursuing LEED® Certification!
Designed with You in Mind
With a variety of single-family home designs to choose from, you have the freedom to personalize your space with high-end options and luxurious finishes.
Custom Homes Available
Want something completely custom? We’ve got you covered with a select number of fully-customizable homesites.
New Construction Homes for Sale Now
Buy or Build your Dream Home in Oakley
Foundry Park Phase 1 is selling quickly, but you still have options! We’re happy to answer any questions you might have or schedule a site tour.

“Location. Location. Location.”
Join our list!
Stay in the loop with everything you need to know about Foundry Park’s upcoming events, development progress, and new homes for sale.


A life that matches your own rhythms.
Three Oaks is an almost magical transformation of a former industrial area to one of Cincinnati’s most desirable neighborhoods. This residential site features over 600 homes including single family, apartment-style, and senior living to accommodate your lifestyle no matter what you are looking for.
